Party Walls, Building Control and the Principal Designer: A Practical Guide
Armstrong Campbell Architects — East London residential architects specialising in private residential projects and house extensions across London.
Party Wall Agreements
The Party Wall Act 1996 applies across England and Wales to any building work that affects a shared wall, boundary, or nearby foundations. If you're planning an extension or loft conversion in London, it almost certainly applies to you.
When you need to serve notice
Three types of work trigger the Act: building on or astride a boundary, working on an existing party wall (cutting in for beams, raising the wall, removing a chimney breast, structural repairs), and excavating near a neighbouring building — within 3 metres if going deeper than their foundations, or within 6 metres if the excavation cuts a 45-degree line from the foundation bottom.
The process
Notices go out 1–2 months before work starts. There are three types — Party Structure Notice, Line of Junction Notice, and Excavation Notice — and each must include a description of the work, accurate drawings, a proposed start date, and your contact details. In a London terrace, you'll typically be serving both neighbours.
Your neighbour has 14 days to respond. They can consent in writing (work proceeds without an Award), dissent or stay silent (an Award is required), or request changes. Non-response is common in rented properties, so it's worth contacting landlords early so they're ready to respond in time.
If an Award is needed, both parties appoint a surveyor — or agree on a single "Agreed Surveyor," which is more cost-effective and works well when the relationship with your neighbour is good. The surveyors inspect both properties, record their existing condition, and produce a legal document setting out how the work will proceed. This condition schedule matters: if damage occurs during construction, the Award provides a clear record of what was there before.
Surveyors are typically building surveyors or structural engineers with party wall experience. An architect can also act as one, provided they have no conflict of interest — which rules out the project architect.
Costs
If your neighbour consents, the notice itself is free, though having your architect prepare it properly costs around £200–400. An Agreed Surveyor typically runs £800–1,200; two separate surveyors, £1,500–2,500 or more; and if the surveyors themselves can't agree, a third may be brought in at a further £1,000–2,000. For a straightforward London extension with cooperative neighbours, expect to spend £1,000–2,000 total.
Common questions
Can my neighbour stop the work? No. Neighbours cannot prevent work that's permitted under planning or permitted development. The Act facilitates the work safely — it doesn't create a right of veto.
Do we need an Award if we're friends with our neighbours? Yes. Verbal agreements aren't sufficient and leave both parties exposed if something goes wrong later. The formal process protects everyone.
My neighbour says our extension is on their land. Leave this to the surveyor. They'll use their professional knowledge and Land Registry documents to determine where the boundary lies.

The typical London terraced house will have two party walls - a wall shared with a neighbour, highlighted in red above.

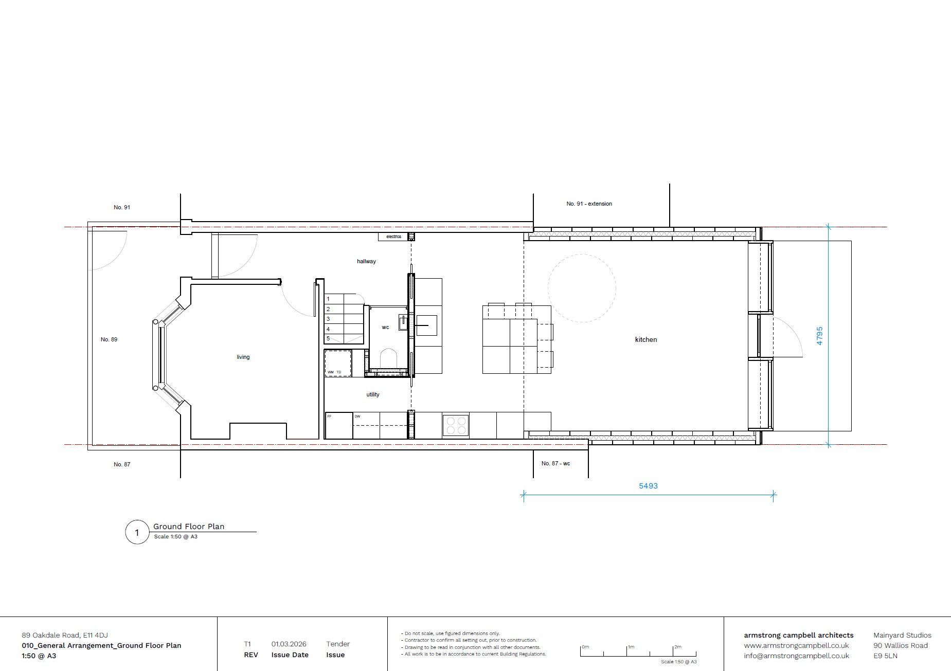
Looking in more detail, this plan for a House in Leytonstone shows the party wall condition. This is a boundary line and is the reason why extensions are typically stepped in. Unless agreed with the neighbour, walls have to be built fully on your own land.

Our design will culminate in a detailed drawing package, with the above detail being a typical Party Wall section. This drawing will be reviewed by the Party Wall Surveyor and presented to the neighbour during the award process.

Building Regulations are in place to ensure minimum standards of safety and functionality are embedded within all building work in the UK.

A detailed package will be reviewed by the Approved Inspector, with drawings showing detailed build-ups and annotated specifications clarifying how the design achieves Building Regulation standards.

At Armstrong Campbell Architects, we embed Building Regulation principles from the early concept stage. One recent example was to overcome a common issue of requiring fire separation from the hallway to the kitchen by integrating 30 minute fire rated sliding pocket doors.
Building Control
Planning permission is about how a building looks and its impact on the surrounding area. Building Regulations are about whether it's safe, structurally sound, energy-efficient and accessible. Both matter, and Building Control approval is mandatory for all extensions, loft conversions and significant alterations. Without a Completion Certificate, you'll face problems when selling or remortgaging.
What the regulations cover
The key Parts most relevant to residential extensions are:
Part A (structure and foundations)
Part B (fire safety and escape routes)
Part C (damp and weatherproofing)
Part E (sound insulation)
Part F (ventilation)
Part L (energy efficiency)
Part P (electrical installations)
Part K (protection from falling — stairs, balustrades)
Part M (access)
Local Authority or Approved Inspector?
You have two routes. Local Authority Building Control is run by the council — familiar with local stock, sometimes more flexible in interpretation, but slower to respond and limited to working-hours inspections. Fees typically run £600–1,400 for a standard extension.
Approved Inspectors are private companies offering faster turnaround, dedicated inspectors and more flexible scheduling, sometimes at a slight cost premium — usually £900–1,400 for a similar project.
At Armstrong Campbell Architects, we generally work with Approved Inspectors. The speed of response and ability to pick up the phone to your inspector directly is genuinely useful on a live project. That said, we've worked well with Local Authority too — neither route is inherently better.
Full Plans vs Building Notice
We always recommend a Full Plans application for extensions. You submit complete technical drawings upfront, Building Control reviews them (typically 5–6 weeks for a first review, 2–3 weeks for subsequent responses), and you get written approval before work starts. This prevents costly remedial work later if something turns out to be non-compliant.
Building Notice — where you notify Building Control 48 hours before starting and inspections happen as you go — is better suited to minor interior works.
Construction inspections
Once work begins, Building Control inspects at key stages: foundation excavation (before concrete is poured), damp-proof course installation, oversite preparation, drains (before covering), structural frame, pre-plaster (when insulation, electrics and ventilation are still visible), and final completion. Each inspection needs 48 hours' notice. Missing one can mean opening up finished work — which is expensive.
Common issues to plan for
Energy efficiency (Part L) is increasingly the most demanding aspect of any extension. Current standards require roughly 150–200mm of wall insulation, 250–300mm in roofs, high-performance glazing, and often thermal bridging calculations and airtightness testing.
Structural calculations are mandatory for all extension work — expect to budget £1,500–4,000 for a structural engineer's input, depending on complexity.
Fire safety in loft conversions is non-negotiable and worth understanding early. You'll need a protected staircase with fire-rated doors from loft to ground floor, hard-wired smoke alarms on every floor, a compliant escape window, 30-minute fire-rated floor construction, treated timbers and steels, and fire stopping at all junctions.
The Completion Certificate
After the final inspection, Building Control issues a Completion Certificate confirming the work meets regulations. Keep it with your property deeds. Without it, solicitors will raise enquiries on any future sale — potentially requiring expensive retrospective surveys, or worse, causing a sale to fall through. Indemnity insurance exists for this situation, but it doesn't fix an underlying compliance problem.
The Principal Designer Role
Under the Construction (Design and Management) Regulations 2015, all construction projects with more than one contractor require a Principal Designer. For domestic extensions, this is almost always the architect, sometimes for a small additional fee.
The Principal Designer's job is to manage health and safety during the pre-construction phase — identifying and eliminating foreseeable risks in the design, coordinating information between consultants, and ensuring the Principal Contractor (the builder) has what they need before work starts.
The Principal Contractor then takes over responsibility on site, producing a Construction Phase Plan and providing inductions and welfare facilities for all workers.
At project completion, the client receives a Health and Safety File containing as-built drawings, structural information, material specifications and guidance on safe future maintenance. This should be kept with your property deeds — it's genuinely useful if you ever extend or alter the building again.

Our approach
We identify early whether the Party Wall Act applies, prepare the necessary drawings, recommend surveyors and coordinate timing — notices are typically served before planning approval comes through, since the party wall process runs in parallel and needs to be in place before work can start. We guide clients through Building Control from submission to Completion Certificate, and we handle the Principal Designer role as part of our standard service.
Early engagement with all of these — party walls, Building Control, CDM — prevents the kind of last-minute delays that hold up construction starts and add cost.
Armstrong Campbell Architects are a residential architecture practice based in Hackney Wick and Leytonstone, East London, working across London on house extensions, loft conversions, renovations and new builds.
Please contact us to arrange a call or site visit to discuss your project.


