Working with an Architect: The Complete RIBA Process Explained
So you've decided to hire an architect for your London house extension or new build project. This is a great first step but what happens next? What's the process? How involved will you be? What will you receive at each stage?
This guide walks you through the complete architectural process using the RIBA Plan of Work—the industry-standard framework that ensures your project progresses smoothly from initial ideas to finished home.
At Armstrong Campbell Architects, Leytonstone, we follow these stages for every project of any scale. The RIBA Plan of Work is a proven method that brings clarity to the complexity of delivering projects, ensuring nothing gets missed, and everyone is brought along the same journey.

The RIBA Plan of Work, Our Simplified Overview
The RIBA Plan of Work organises the process of briefing, designing, constructing and operating building projects into eight stages. For residential extension or new build projects, this framework provides structure to the design process and coordinates the work of the design team, consultants, and contractors. The framework has been refined over nearly six decades of architectural practice and represents the condensed learnings of the profession.
Each distinct stage has a defined outcome and decision points. Understanding these stages helps both architects and clients know what to expect, when key decisions need to be made, and how the project will develop.
The framework is procurement-neutral, meaning it works equally well whether you're using traditional procurement, design and build, or other arrangements. However, the procurement method you choose will affect how certain stages overlap and how design responsibilities are divided.

0- Strategic Definition
Pre-appointment of an architect, this is a project's initial feasibility process for a client, asking if it is right to progress with a project.
1 - Preparation and Brief
Define the project scope, deliverables and programme.
2. Concept Design
To establish the basic volumes and layout of the house, along with initial ideas for its internal and external appearance.
3. Spatial Coordination
To complete the overall look and feel of the project with sufficient detail that technical design can commence.
4. Technical Design
Refinement of the design and delivery of a full package of information such that a contractor can be appointed with an accurate design, cost and programme.
5. Construction
Both off-site manufacturing and on-site construction of the project.
6. Handover
Concludes the Building Contract and rectification of any defects.
7. In Use
Ongoing maintenance and review of how the building functions in real terms.
Stage 0: Strategic Definition
Stage 0 determines whether a building project is the appropriate means of achieving your objectives. For residential extensions, this stage typically involves assessing whether extending is preferable to moving, establishing budget parameters, and identifying major constraints.
The core tasks at this stage include developing client requirements, preparing a business case for feasible options, and reviewing project risks. The RIBA guidance notes that no design team is required for Stages 0 and 1—client advisers may be appointed to provide strategic advice before Stage 2 commences.
For many domestic projects, this stage is informal and can often be part of an initial site visit with the architect, often before they are appointed. It establishes the foundation for what follows. The outcomes include clarity about project objectives, rough budget parameters, and an initial assessment of feasibility. Usually a Fee Proposal and Architect’s Appointment will follow this.
Stage 1: Preparation and Briefing
Stage 1 develops the project brief, including project outcomes, sustainability outcomes, quality aspirations, and spatial requirements. This is the stage where the design team is typically appointed and where architect and client begin working together.
Core tasks include preparing the project Initial Brief, undertaking site appraisals, and assembling the project team. For residential projects, this involves commissioning measured surveys, researching planning constraints, reviewing Building Control records, and appointing structural engineers or other consultants as required. Consultants may be appointed at later stages.
The project brief should document spatial requirements, along with functional relationships, performance requirements, and aesthetic direction if given. The RIBA guidance emphasises that the brief should be sufficiently detailed to allow design to proceed without constant iteration. A well-developed brief at this stage prevents revisions later.
At the end of Stage 1, the Project Strategies should be established. These might include strategies for sustainability, planning, cost, health and safety, and procurement. These strategies provide a framework for coordinating specialist inputs throughout the design process.
Overall by the end of Stage 1, the project should be set up for the architect and client to begin designing.

We begin all projects with an Initial Programme as part of Stage 01 Preparation and Brief. The below is an example programme of a residential house in London and an overview note of what happens at each stage, prior to a detailed look in the following chapters.

An example of an early stage hand sketched plan, visually describing the conceptual approach to space planning with coloured backgrounds and indicative furniture.
Stage 2: Concept Design
Stage 2 develops and reviews initial design concepts based on the project brief. The architectural concept is prepared, and structural concepts are developed with the engineering team. This is where ideas take shape, where possibilities are explored, where the project begins to have form.
The RIBA guidance advises patience at this stage. While planning pre-application advice may be obtained, only experienced clients should consider submitting planning applications at Stage 2. The framework recommends that design concepts be properly tested and client sign-off obtained before proceeding to spatial coordination.
For residential extensions, concept design typically involves exploring alternative approaches—different configurations, material strategies, or spatial arrangements. Each option should respond to site constraints, planning policy, and the project brief. Cost exercises at this stage provide initial budget validation and help ensure the design ambitions align with financial reality.
The stage concludes with client approval of the architectural concept and confirmation to proceed to Stage 3. The concept should be sufficiently developed that Stage 3 can focus on coordination rather than fundamental design revision. This is a critical decision point—changing direction after this stage wastes consultant time and risks coordination errors.
Stage 3: Spatial Coordination
Stage 02 focuses on the overall project concept with overall plans and volumes, with high level ideas on materiality and aesthetics. In Stage 03, the design begins to zoom into each room, designing each space on elevation. By the end of the stage, the look and feel of the project, internal and external should be clear.
The RIBA Plan of Work states that spatial coordination "is fundamentally about testing and validating the Architectural Concept, to make sure that the architectural and engineering information prepared at Stage 2 is Spatially Coordinated before the detailed information required to manufacture and construct the building is produced at Stage 4."
Guidance continues that "Stage 3 is not about adjusting the Architectural Concept, which should remain substantially unaltered, although detailed design or engineering tasks may require adjustments to make sure that the building is Spatially Coordinated."
What this means is that it is a key stage for integrating primary services and structures into the concept plan layouts. At the end of Stage 03, in theory, consultants should be able to work in relative isolation to produce a tender package. In reality, coordination work always continues into Stage 04, but it is typically looking at much more refined and specific details.
Core tasks include coordinating all architectural and engineering information, completing design studies, and undertaking engineering analysis. Structural beam positions must be resolved with ceiling heights. Service equipment locations should be determined. Building services routes must be coordinated with the structural grid and architectural spaces. The project should fit together in three dimensions.
Planning applications are usually submitted during or at the end of this stage.
While information produced at Stage 3 should be coordinated, it is unlikely to contain sufficient detail for robust contractor tendering. Specifications will be outlined but not complete and this is intentional with Stage 4 allowing adequate time to develop detailed information for manufacturing and construction.
The RIBA guidance recommends implementing change control procedures during Stage 3. Fundamental changes after spatial coordination is achieved generates a great deal of abortive work and use of all consultants time. There are additional coordination risk errors.

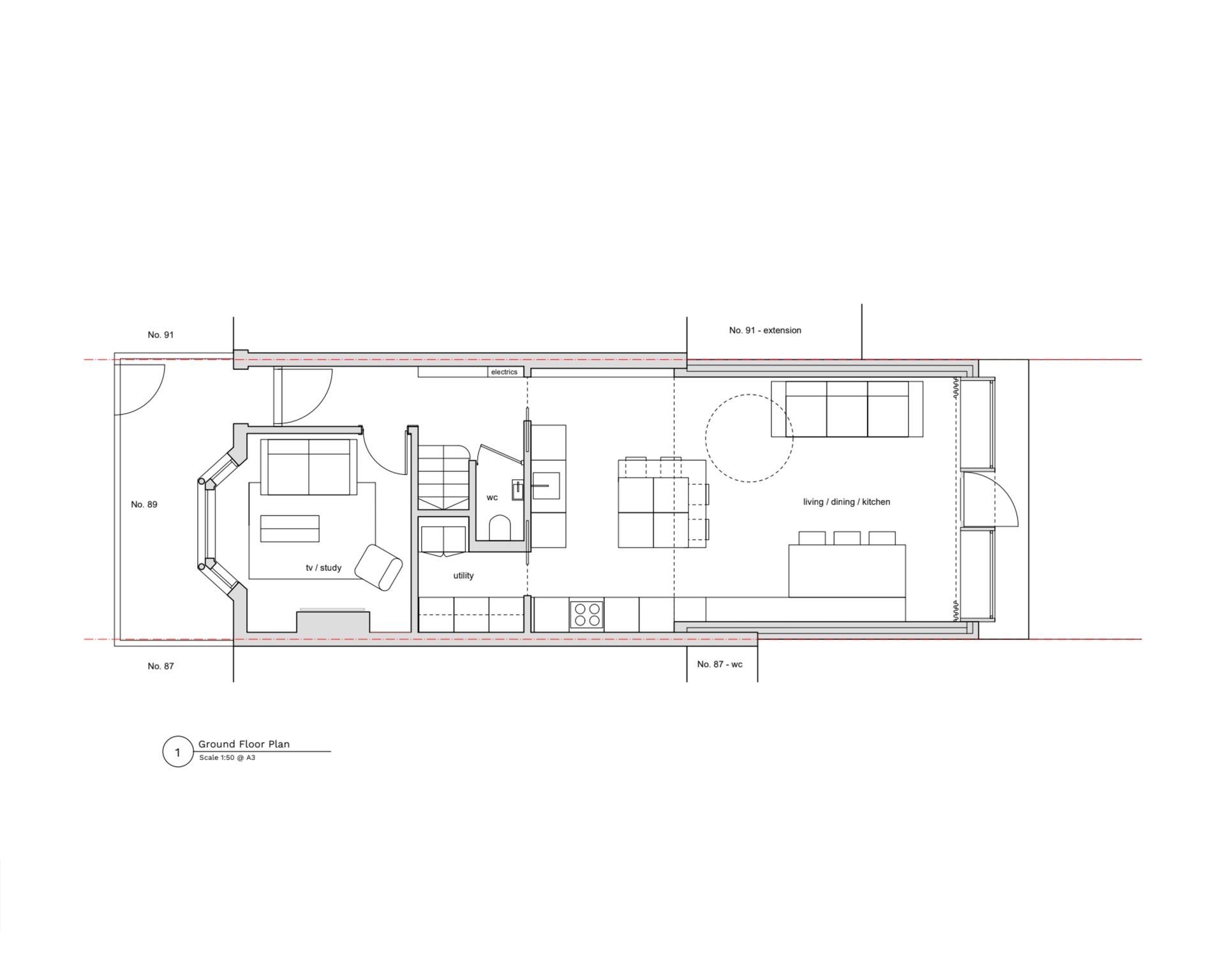
By the end of Stage 03 there will be a good sense of the look and feel of a project, with clear references and material palettes.

Drawings will be gaining detail and be fully digital. General arrangement plans, sections and elevations will be at 1:50 scale (as above). Key room elevations, such as bathrooms and kitchens, will be drawn at 1:20 scale to reflect the added detail of design.
Stage 4: Technical Design
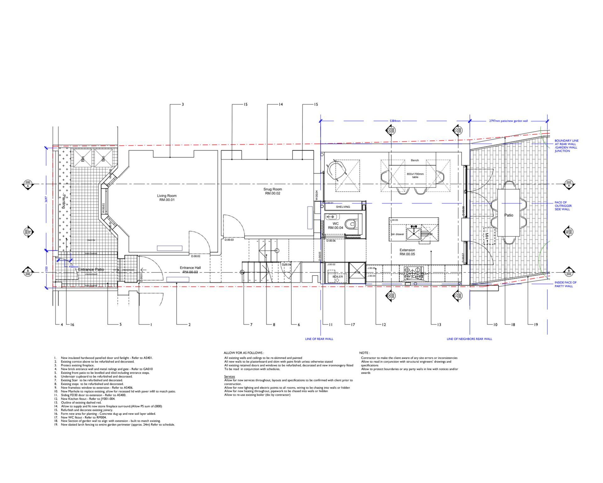
Stage 4 produces all design information required to manufacture and construct the project. This includes preparation of technical design in accordance with the design responsibility matrix and construction programme. This is where spatial relationships become buildable details.
For residential extensions, Stage 4 produces construction drawings, specifications, and structural calculations. Building Regulations applications are submitted and tender documentation is prepared. The design is refined to construction tolerance with drawings moving from 1:50 or 1:20 scale in previous stages, to 1:5 detail packages, fully specified for construction. Every detail that a contractor needs to price and build the work should be documented.
As an example of the detail progress through the Stages to this point:
Stage 02 Concept Design
Can suggest a floor is “timber” (this choice would not be confirmed until the next stage, so is deliberately high level).
Stage 03 Spatial Coordination
Adds a simple aesthetic description such as “light natural Oak”
Stage 04 Technical Design
Adds specific descriptions for Contractors to accurately price, such as “15mm engineered natural Oak floorboards (250mm wide planks by minimum length 2000mm) with a 5mm solid wear layer, finished in matt lacquer. 300x300mm sample to be provided by Contractor”.
The stage concludes with the issue of a set of Tender Documents to either a nominated contractor for a Negotiated Tender, or to multiple contractors for a Competitive Tender.

Plans by the end of Stage 04 Technical Design will have sufficient detail for accurate pricing from the Contractor during Tender. Drawings will reference to other details within the overall package and be fully annotated as an accurate description of the works.

A typical call out detail, this showing a new double glazed window in a style to match the historic windows. A mixture of 1:20 scale drawings show the overall window design and layout, while 1:5 details of the window jamb, head and sill clearly describe the construction build-up within the walls and what is visible.
Stage 5: Manufacturing and Construction
Stage 5 comprises the manufacturing and construction of the building, along with associated inspections and resolution of site queries. RIBA guidance states there is no design work in Stage 5 other than responding to site queries. If the preceding stages have been executed properly, construction should proceed smoothly.
The stage name acknowledges the increasing use of off-site manufacturing and modern methods of construction. For residential projects, most of the manufacturing happens on site apart from bespoke joinery, however on larger or complex projects, the boundary between factory and site is shifting.
The architect's role during construction varies depending on the appointment. Under full contract administration, the architect issues instructions, values work, manages variations, and certifies completion. Regular site inspections monitor workmanship quality and compliance with drawings. The architect acts as the client's professional representative throughout the construction process. Often architects perform a Design Monitoring Role, where they become ‘client side’ and act on behalf of the client to review and liaise with the contractor, to review works built for both quality and against the tender documents.
Building Control inspections are coordinated throughout the stage. The contractor must notify Building Control at required stages—foundations, drainage, structural work, fire protection, completion. These inspections ensure the work complies with Building Regulations and protects both client and contractor.

Stage 6: Handover
Stage 6 covers the handover of the building, conclusion of the building contract, and initiation of aftercare tasks. Core tasks include resolving defects, issuing the Practical Completion certificate, and compiling Building Manual documentation.
The practical completion inspection identifies any defects or incomplete works. These must be rectified before practical completion is certified. Once certified, the defects liability period commences—typically 12 months for residential projects. During this period, the contractor remains responsible for defects arising from workmanship or materials.
Building documentation including as-built drawings, operation manuals and maintenance instructions, warranties, and the Health and Safety File will be passed to the client. The Building Regulations Completion Certificate is essential for future property transactions. Without it, selling the property becomes complicated.
Stage 7: Use
Stage 7 covers the building's operational life and feedback into future projects. RIBA emphasises that Stage 7 starts concurrently with Stage 6 and lasts for the life of the building.
Aftercare tasks include seasonal commissioning, performance evaluation, and operational support. The Plan of Work places particular emphasis on monitoring sustainability outcomes—verifying that energy performance, resource efficiency, and other environmental targets are achieved in practice, not just in design calculations.
For residential projects, Stage 7 is usually minimal, with a post-occupancy visit to review how spaces are used and whether design intentions were realised. The key is learning from completed projects—what worked, what didn't, how spaces are actually used—to improve future design quality.
Conclusion
The RIBA Plan of Work provides a coherent framework for organising architectural projects from strategic definition through to long-term use. It reflects contemporary practice, diverse procurement routes, digital coordination and sustainability imperatives.
For practices working on London extensions, the framework offers several benefits. It provides a common language for discussing project progression with clients and consultants. It identifies clear decision points and stage outcomes. It coordinates design development with statutory processes—planning, Building Regulations, CDM compliance. It ensures technical design is sufficiently developed before construction commences.
Most importantly, it is a framework developed through extensive industry feedback and refined over nearly six decades of practice. Used appropriately and adapted to project circumstances, it remains the definitive model for the design and construction process in UK architectural practice.
Read more on the RIBA Plan of Work on the official website, linked below:
https://www.riba.org/work/insights-and-resources/riba-plan-of-work/
For a detailed description of the regulatory environment architects coordinate on behalf of clients, read our Journal post on Building Control, Party Wall and Principle Designer Role:
Armstrong Campbell Architects is a RIBA Chartered Architect Practice based in East London, specialising in residential extensions, refurbishments and new builds. As a principal-led practice, we offer a personal and bespoke architecture and interior design service.


